Добро пожаловать на http://vipplan.ru

Випплан Мценск - это тысячи проектов домов в нашем каталоге!

Вы всегда сможете найти для себя проект дома вашей мечты! Даже если этого не случилось, мы готовы в любую минуту предложить проект индивидуального дома.

Забыли пароль?
Вы еще не регистрировались?

Перейдите по ссылке ниже на страницу регистрации.

Регистрация...

Внимание!!!

В проектную документацию могут быть внесены изменения любой сложности, в соответствии в Вашими пожеланиями!

Полезные статьи

Правильная изоляция подвала

Какой выбрать материал, как правильно выполнить работу, перед началом изоляции подвала какие подготовительно-строительные работы следует провести и какой момент играет правильное выполнение работ. Последние несколько лет придали много хлопот жильцам домов, увлажнив им подвалы. Этот период показал насколько важно обеспечить надлежащую защиту зданий от грунтовых вод и воздействия влаги....

Утепление стен дома изнутри

Утепление стен дома изнутри – это не правильный метод теплоизоляции помещения и используется в самом крайнем случае, когда других вариантов уже не остается. Как правило, утепление стен изнутри выполняется по незнанию или вынужденно, поскольку, теплоизоляция внутренних помещений дома другим способом невозможна. Вопросы теплоизоляции необходимо решать на стадии проектирования дома или коттеджа, а не тогда когда дом уже построен и приходится исправлять совершенные ошибки по факту....

Проекты домов и коттеджей > Каталог проектов домов > Одноэтажный дом с гаражом и террасой Vg1083

Одноэтажный дом с гаражом и террасой Vg1083

Одноэтажный дом с гаражом и террасой
Зарегистрируйтесь

Проект № Vg1083


Техническое описание
Общая площадь: 113.25 м2
Жилая площадь: 58.21 м2
Высота здания: 6.23 м
Размеры дома: 17.7м×9.2м
Кол-во комнат: 4
Цокольный этаж: нет
Гараж: нет
Мансарда: нет

Kонструкция
Фундамент: Буронабивной, монолитный, ж/б
Перекрытия: Деревянные
Материал стен: Каркас

Архитектурный раздел
Конструктивный раздел
АР+КР - 48 000 (Со скидкой 20%)
Проект индивидуального одноэтажного одноквартирного жилого дома с размерами здания 17,7 x 9,2 м. Наружная отделка здания - фасадная штукатурка. Цоколь - отделка камнем. Фундамент - свайно-ростверковый (буронабивной). Ростверк - монолитный ж/б. Наружные стены - деревянный каркас. Между стойками каркаса заложить тепло-шумоизоляционные материалы, пароизоляцию. Внутренние стены - Доска, OSB-3 с двух сторон, внутр. отделка. Перегородки - Брус, отделка с двух сторон ГКЛ. Для устройства вентканалов и дымоходов используют трубы металлические, трубы керамические многослойные и.т.д. Выбор материала, конструкции и расположение в доме -по усмотрению заказчика. Пол первого этажа - пол по грунту. Чердачное перекрытие: по деревянным балкам с пароизоляцией и использованием тепло-шумоизоляционных материалов в межбалочном пространстве. Кровля - металлочерепица. Окна - металлопластиковые, выполненные по индивидуальному заказу.
Генплан застройки участка / Паспорт проекта 7000 руб / 10000 руб
Инженерный раздел (полный) 56500 руб
Смета на строительство 28250 руб
Теплотехнический расчет материалов стен Бесплатно
Стоимость проекта со незначительнми изменениями 57150 руб
Стоимость проекта со средними изменениями* 65700 руб
Стоимость проекта со значительными изменениями** 67900 руб

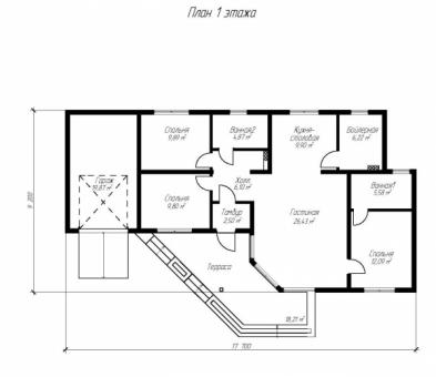
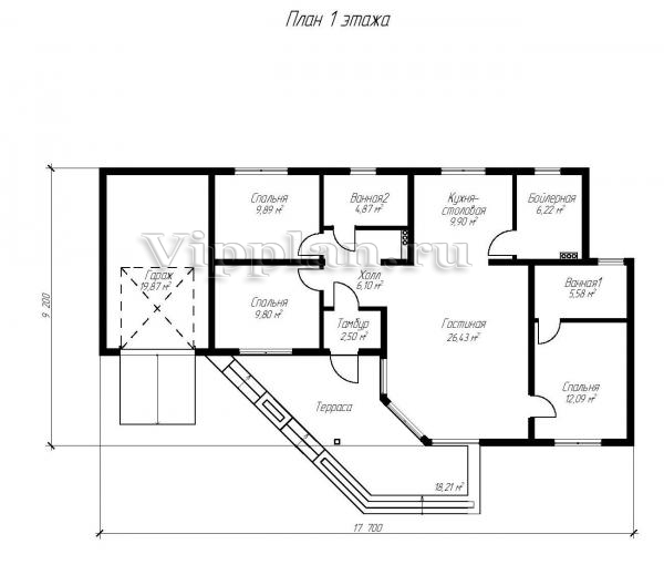
План первого этажа


Гостиная — 26,43 кв м
Кухня — 9,90 кв м
Ванная 1 — 5,58 кв м
Бойлерная — 6,22 кв м
Спальня — 12,09 кв м
Холл — 6,10 кв м
Ванная 2 — 4,87 кв м
Тамбур — 2,50 кв м
Терраса — 18,21 кв м
Спальня — 9,80 кв м
Спальня — 9,89 кв м
Гараж — 19,87 кв м
Одноэтажный дом с гаражом и террасой Одноэтажный дом с гаражом и террасой Одноэтажный дом с гаражом и террасой Одноэтажный дом с гаражом и террасой
Внесение изменений и привязка к участку строительства

В любой из проектов от компании VIPplan - Мценск по вашему желанию могут быть внесены изменения в материалы стен, материалы наружной отделки дома, а также будет произведена адаптация проекта под конкретный регион строительства (с учетом грунтов региона, геологических особенностей вашего участка и местных климатических условий) - БЕСПЛАТНО !!! (кроме проектов со скидкой и проектов наших партнеров).

Любой из проектов, размещенных на сайте mtsensk.vipplan.ru мы можем выполнить из требуемых вам строительных материалов: ячеистый бетон (газобетон, пеноблок), керамоблок, кирпич, шлакоблок, бетонный блок, дерево (брус, клееный брус), каркасная технология (деревянный каркас, металлокаркас (ЛСТК)).

Фасад дома и его наружную отделку так же возможно выполнить с применением различных облицовочных материалов: структурной штукатурки, (с утеплителем и без), сайдингом (пластиковый или металлосайдинг), фиброплитами, кирпича.

 
6 Избранные
проекты

Доставка проектов по России: Москва (Московская область), Санкт-Петербург (Ленинградская область), Краснодар, Ростов-на-Дону, Ставрополь, Сочи, Волгоград, Новосибирск, Белгород, Брянск, Воронеж, Саратов, Хабаровск, Астрахань, Нальчик, Владикавказ, Екатеринбург, Тюмень, Самара, Нижний Новгород, Казань, Пермь, Уфа, Челябинск, Красноярск, Ханты-Мансийск, Иркутск, Курган, Оренбург, Омск, Томск, Барнаул, Новокузнецк, Кемерово, Абакан, Чита, Якутск, Южно-Сахалинск, Петропавловск-Камчатский и страны ближнего зарубежья: Белоруссия, Украина, Казахстан