Добро пожаловать на http://vipplan.ru

Випплан Мценск - это тысячи проектов домов в нашем каталоге!

Вы всегда сможете найти для себя проект дома вашей мечты! Даже если этого не случилось, мы готовы в любую минуту предложить проект индивидуального дома.

Забыли пароль?
Вы еще не регистрировались?

Перейдите по ссылке ниже на страницу регистрации.

Регистрация...

Внимание!!!

В проектную документацию могут быть внесены изменения любой сложности, в соответствии в Вашими пожеланиями!

Полезные статьи

Приобретение земельного участка в собственность

Вы собираетесь приобрести участок. Прежде чем принять окончательное решение, тщательно изучите местность, на которой находится ваш участок, внимательно осмотрите местность. Узнайте о близости реки или других водоемах, всмотритесь в рельеф. Каждый из факторов может иметь неоспоримые плюсы, а также минусы, способные повлиять на окончательное решение. Стоит принять во внимание, что земельные участки, которые продаются «напрямую», дешевле тех, которые реализуют, пользуясь услугами посредников....

Инженерный раздел архитектурно-строительного проекта

Понятие «комфортный, теплый и уютный дом» включает в себя грамотно рассчитанные и проведенные инженерные сети. Наша компания, имея большой опыт, возьмет на себя весь комплекс мероприятий по проектированию вашего дома, связанные с планировкой, выбором материалов и устройством инженерных систем (инженерный раздел проекта дома: электрика, отопление, водоснабжение и канализация)...

Проекты домов и коттеджей > Каталог проектов домов > Дом с мансардой и эркером Vg1095

Дом с мансардой и эркером Vg1095

Дом с мансардой и эркером
Зарегистрируйтесь

Проект № Vg1095


Техническое описание
Общая площадь: 111.75 м2
Жилая площадь: 72.01 м2
Высота здания: 7.59 м
Размеры дома: 9.08м×11.18м
Кол-во комнат: 5
Цокольный этаж: нет
Гараж: нет
Мансарда: есть

Kонструкция
Фундамент: Свайно-ростверковый
Перекрытия: Деревянные
Материал стен: Газобетон

Архитектурный раздел
Конструктивный раздел
Инженерный раздел
АР+КР - 48 000 (Со скидкой 20%)
АР+КР+ИР - 87 200 (Со скидкой 50%)
Проект индивидуального одноэтажного одноквартирного жилого дома с мансардой с размерами здания 9,08 x 11,18 м. Наружная отделка здания – сайдинг. Фундамент - свайно-ростверковый (буронабивной). Наружные стены – газобетонные блоки, утеплитель - базальтовая вата с облицовкой сайдингом. Внутренние стены - газобетонные блоки. Перегородки на первом этаже из газобетонных блоков, на мансарде ГКЛ на металлическом каркасе. Снаружи вентканалы и дымоходы - сайдинг. Перемычки - монолитные и сварные из профиля проката. Перекрытие межэтажное - по деревянным балкам с использованием теплошумоизоляционных материалов типа "URSA" в межбалочном пространстве, пол первого этажа - пол по грунту. Пол первого этажа - пол по грунту. Крыша двухскатая. Кровля - металлочерепица. Окна - металлопластиковые, выполненные по индивидуальному заказу.
Генплан застройки участка / Паспорт проекта 7000 руб / 10000 руб
Инженерный раздел (полный) 39200 руб (56000 руб)
Смета на строительство 28000 руб
Теплотехнический расчет материалов стен Бесплатно
Стоимость проекта со незначительнми изменениями 57200 руб
Стоимость проекта со средними изменениями* 65600 руб
Стоимость проекта со значительными изменениями** 67800 руб

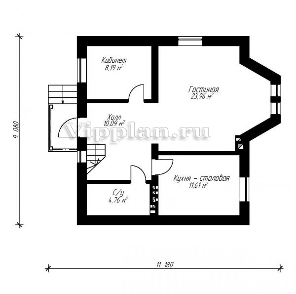
План первого этажа


Гостиная — 23,96 кв м
Кухня — 11,61 кв м
Холл — 10,09 кв м
Кабинет — 8,19 кв м
С/у — 4,76 кв м

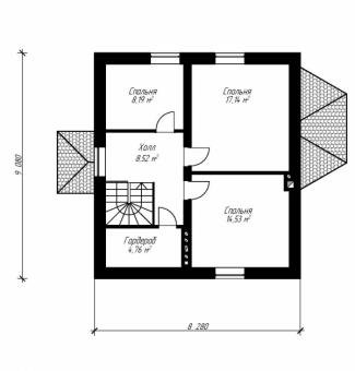
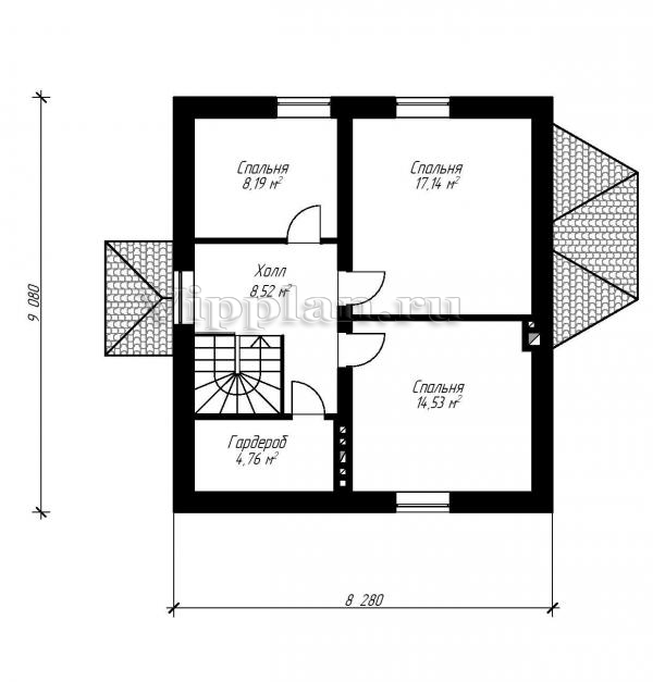
План мансардного этажа


Спальня — 8,19 кв м
Спальня — 17,14 кв м
Холл — 8,52 кв м
Спальня — 14,53 кв м
Гардероб — 4,76 кв м
Дом с мансардой и эркером Дом с мансардой и эркером Дом с мансардой и эркером Дом с мансардой и эркером
Внесение изменений и привязка к участку строительства

В любой из проектов от компании VIPplan - Мценск по вашему желанию могут быть внесены изменения в материалы стен, материалы наружной отделки дома, а также будет произведена адаптация проекта под конкретный регион строительства (с учетом грунтов региона, геологических особенностей вашего участка и местных климатических условий) - БЕСПЛАТНО !!! (кроме проектов со скидкой и проектов наших партнеров).

Любой из проектов, размещенных на сайте mtsensk.vipplan.ru мы можем выполнить из требуемых вам строительных материалов: ячеистый бетон (газобетон, пеноблок), керамоблок, кирпич, шлакоблок, бетонный блок, дерево (брус, клееный брус), каркасная технология (деревянный каркас, металлокаркас (ЛСТК)).

Фасад дома и его наружную отделку так же возможно выполнить с применением различных облицовочных материалов: структурной штукатурки, (с утеплителем и без), сайдингом (пластиковый или металлосайдинг), фиброплитами, кирпича.

 
6 Избранные
проекты

Доставка проектов по России: Москва (Московская область), Санкт-Петербург (Ленинградская область), Краснодар, Ростов-на-Дону, Ставрополь, Сочи, Волгоград, Новосибирск, Белгород, Брянск, Воронеж, Саратов, Хабаровск, Астрахань, Нальчик, Владикавказ, Екатеринбург, Тюмень, Самара, Нижний Новгород, Казань, Пермь, Уфа, Челябинск, Красноярск, Ханты-Мансийск, Иркутск, Курган, Оренбург, Омск, Томск, Барнаул, Новокузнецк, Кемерово, Абакан, Чита, Якутск, Южно-Сахалинск, Петропавловск-Камчатский и страны ближнего зарубежья: Белоруссия, Украина, Казахстан