Добро пожаловать на http://vipplan.ru

Випплан Мценск - это тысячи проектов домов в нашем каталоге!

Вы всегда сможете найти для себя проект дома вашей мечты! Даже если этого не случилось, мы готовы в любую минуту предложить проект индивидуального дома.

Забыли пароль?
Вы еще не регистрировались?

Перейдите по ссылке ниже на страницу регистрации.

Регистрация...

Внимание!!!

В проектную документацию могут быть внесены изменения любой сложности, в соответствии в Вашими пожеланиями!

Полезные статьи

Советы по проектированию дома

Представляем Вашему вниманию несколько советов по проектированию дома. Все что касается выбора участка, размещению дома на участке, подбора проекта на строительство дома, советы по выбору технологии строительства и материалов и т.д....

Газобетонные перекрытия

Перекрытия из газобетонных плит, устанавливаются без применения подъемников и кранов. Строители устанавливают прочные и, что немаловажно, легкие газоблоки без помощи техники. Ячеистый бетон (пенобетон и газобетон) нашел широкое применение в домах из пенобетона и газобетона в Мценске...

Проекты домов и коттеджей > Каталог проектов домов > Проект загородного коттеджа из пенобетона Vg1450

Проект загородного коттеджа из пенобетона Vg1450

Проект загородного коттеджа из пенобетона
Зарегистрируйтесь

Проект № Vg1450


Техническое описание
Общая площадь: 146.18 м2
Жилая площадь: 95.21 м2
Высота здания: 8.58 м
Размеры дома: 11.84м×9.65м
Кол-во комнат: 5
Цокольный этаж: нет
Гараж: нет
Мансарда: есть

Kонструкция
Фундамент: Свайно-ростверковый
Перекрытия: Монолитная ж/б плита
Материал стен: Газобетон

Архитектурный раздел
Конструктивный раздел
АР+КР - 52 000 (Со скидкой 20%)
Проект индивидуального одноэтажного жилого дома с мансардой с размерами здания 11,84 x 9,65 м. Наружная отделка здания – штукатурка, деревянные панели, искусственный камень. Фундамент – свайно-ростверковый буронабивной. Наружные стены – из пенобетонного блока с утеплением минеральной ватой и отделкой штукатуркой, деревянными панелями, искусственным камнем. Внутренние стены – из пенобетонного блока. Перегородки – из пенобетонного блока. Пол первого этажа – пол по грунту, межэтажное перекрытие- монолитная ж/б плита перекрытия. Крыша — многоскатная. Кровля – металлочерепица. Окна — металлопластиковые
Генплан застройки участка / Паспорт проекта 7000 руб / 10000 руб
Инженерный раздел (полный) 73000 руб
Смета на строительство 36500 руб
Теплотехнический расчет материалов стен Бесплатно
Стоимость проекта со незначительнми изменениями 61350 руб
Стоимость проекта со средними изменениями* 72300 руб
Стоимость проекта со значительными изменениями** 75200 руб

План первого этажа


Прихожая — 3,81 м2
Ходд — 6,70 м2
С/у — 2,47 м2
Кухня — 10,35 м2
Бойлерная — 3,02 м2
Кладовая — 5,05 м2
Кабинет — 13,32 м2
Гостиная — 29,28 м2

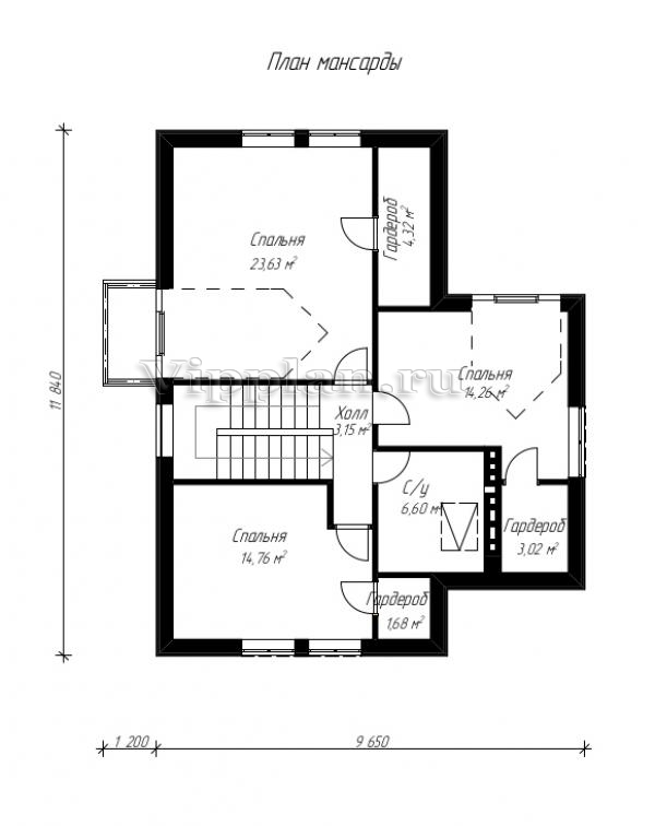
План мансардного этажа


Холл — 3,15 м2
Спальня — 23,63 м2
Гардероб — 4,32 м2
Спальня — 14,26 м2
С/у — 6,60 м2
Гардероб — 3,02 м2
Спальня — 14,76 м2
Гардероб — 1,68 м2
Проект загородного коттеджа из пенобетона Проект загородного коттеджа из пенобетона Проект загородного коттеджа из пенобетона Проект загородного коттеджа из пенобетона

Модификации проектов

Внесение изменений и привязка к участку строительства

В любой из проектов от компании VIPplan - Мценск по вашему желанию могут быть внесены изменения в материалы стен, материалы наружной отделки дома, а также будет произведена адаптация проекта под конкретный регион строительства (с учетом грунтов региона, геологических особенностей вашего участка и местных климатических условий) - БЕСПЛАТНО !!! (кроме проектов со скидкой и проектов наших партнеров).

Любой из проектов, размещенных на сайте mtsensk.vipplan.ru мы можем выполнить из требуемых вам строительных материалов: ячеистый бетон (газобетон, пеноблок), керамоблок, кирпич, шлакоблок, бетонный блок, дерево (брус, клееный брус), каркасная технология (деревянный каркас, металлокаркас (ЛСТК)).

Фасад дома и его наружную отделку так же возможно выполнить с применением различных облицовочных материалов: структурной штукатурки, (с утеплителем и без), сайдингом (пластиковый или металлосайдинг), фиброплитами, кирпича.

 
6 Избранные
проекты

Доставка проектов по России: Москва (Московская область), Санкт-Петербург (Ленинградская область), Краснодар, Ростов-на-Дону, Ставрополь, Сочи, Волгоград, Новосибирск, Белгород, Брянск, Воронеж, Саратов, Хабаровск, Астрахань, Нальчик, Владикавказ, Екатеринбург, Тюмень, Самара, Нижний Новгород, Казань, Пермь, Уфа, Челябинск, Красноярск, Ханты-Мансийск, Иркутск, Курган, Оренбург, Омск, Томск, Барнаул, Новокузнецк, Кемерово, Абакан, Чита, Якутск, Южно-Сахалинск, Петропавловск-Камчатский и страны ближнего зарубежья: Белоруссия, Украина, Казахстан