Добро пожаловать на http://vipplan.ru

Випплан Мценск - это тысячи проектов домов в нашем каталоге!

Вы всегда сможете найти для себя проект дома вашей мечты! Даже если этого не случилось, мы готовы в любую минуту предложить проект индивидуального дома.

Забыли пароль?
Вы еще не регистрировались?

Перейдите по ссылке ниже на страницу регистрации.

Регистрация...

Внимание!!!

В проектную документацию могут быть внесены изменения любой сложности, в соответствии в Вашими пожеланиями!

Полезные статьи

Плиты перекрытий

Железобетонные плиты очень широко используются в строительстве. При помощи них возводят как промышленные объекты так жилые. Железобетонные плиты перекрытия являются главной частью любого строительного объекта вне зависимости от этажности....

Перекрытия в доме

Перекрытия – одно из важнейших составляющих строящегося дома. Это горизонтальная внутренняя защитная конструкция, разделяющая по уровню смежные помещения дома. По назначению выделяют подвальные, межэтажные и чердачные перекрытия. При проектировании домов и зданий различного назначения, требования к межэтажным перекрытиям определяются их местоположением и функциями разделяемых помещений: надподвальные, межэтажные, чердачные и т.д....

Проекты домов и коттеджей > Каталог проектов домов > Проект одноэтажного дома с мансардой и эркером Vg2224

Проект одноэтажного дома с мансардой и эркером Vg2224

Проект одноэтажного дома с мансардой и эркером
Зарегистрируйтесь

Проект № Vg2224


Техническое описание
Общая площадь: 107.05 м2
Жилая площадь: 71.31 м2
Высота здания: 7.54 м
Размеры дома: 14.24м×8.34м
Кол-во комнат: 4
Цокольный этаж: нет
Гараж: нет
Мансарда: есть

Kонструкция
Фундамент: свайно-ростверковый
Перекрытия: металлические балки
Материал стен: Газобетон

Архитектурный раздел
Конструктивный раздел
Инженерный раздел
АР+КР - 48 000 (Со скидкой 20%)
АР+КР+ИР - 85 450 (Со скидкой 50%)
Проект индивидуального одноэтажного жилого дома с мансардой с размерами здания 14,24 x 8,34 м. Наружная отделка здания – облицовочный кирпич. Фундамент –свайно-ростверковый. Наружные стены –газосиликатные блоки, с утеплением ЭПП и воздушным зазором и отделкой облицовочным кирпичом (внутренняя и наружняя отделка) . Внутренние стены - газосиликатные блоки. Перегородки – кирпич, ГКЛ на металлическом каркасе. Пол первого этажа - пол по грунту. Межэтажное перекрытие -металлические балки. Крыша духскатная. Кровля – битумная черепица. Окна — металлопластиковые
Генплан застройки участка / Паспорт проекта 7000 руб / 10000 руб
Инженерный раздел (полный) 37450 руб (53500 руб)
Смета на строительство 26750 руб
Теплотехнический расчет материалов стен Бесплатно
Стоимость проекта со незначительнми изменениями 57300 руб
Стоимость проекта со средними изменениями* 65400 руб
Стоимость проекта со значительными изменениями** 67500 руб

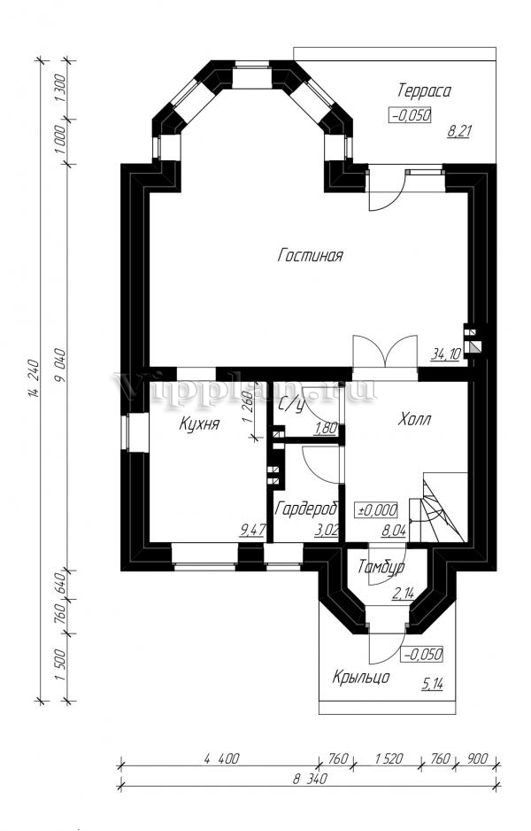
План первого этажа


Тамбур — 2,14 кв м
Холл — 8,04 кв м
Гардероб — 3,02 кв м
С/у — 1,8 кв м
Кухня — 9,47 кв м
Гостиная — 34,1 кв м

План мансардного этажа


Холл — 3,46 кв м
Спальня — 14,44 кв м
Спальня — 13,3 кв м
Кабинет — 9,47 кв м
С/у — 7,81 кв м
Проект одноэтажного дома с мансардой и эркером Проект одноэтажного дома с мансардой и эркером Проект одноэтажного дома с мансардой и эркером Проект одноэтажного дома с мансардой и эркером

Модификации проектов

Внесение изменений и привязка к участку строительства

В любой из проектов от компании VIPplan - Мценск по вашему желанию могут быть внесены изменения в материалы стен, материалы наружной отделки дома, а также будет произведена адаптация проекта под конкретный регион строительства (с учетом грунтов региона, геологических особенностей вашего участка и местных климатических условий) - БЕСПЛАТНО !!! (кроме проектов со скидкой и проектов наших партнеров).

Любой из проектов, размещенных на сайте mtsensk.vipplan.ru мы можем выполнить из требуемых вам строительных материалов: ячеистый бетон (газобетон, пеноблок), керамоблок, кирпич, шлакоблок, бетонный блок, дерево (брус, клееный брус), каркасная технология (деревянный каркас, металлокаркас (ЛСТК)).

Фасад дома и его наружную отделку так же возможно выполнить с применением различных облицовочных материалов: структурной штукатурки, (с утеплителем и без), сайдингом (пластиковый или металлосайдинг), фиброплитами, кирпича.

 
6 Избранные
проекты

Доставка проектов по России: Москва (Московская область), Санкт-Петербург (Ленинградская область), Краснодар, Ростов-на-Дону, Ставрополь, Сочи, Волгоград, Новосибирск, Белгород, Брянск, Воронеж, Саратов, Хабаровск, Астрахань, Нальчик, Владикавказ, Екатеринбург, Тюмень, Самара, Нижний Новгород, Казань, Пермь, Уфа, Челябинск, Красноярск, Ханты-Мансийск, Иркутск, Курган, Оренбург, Омск, Томск, Барнаул, Новокузнецк, Кемерово, Абакан, Чита, Якутск, Южно-Сахалинск, Петропавловск-Камчатский и страны ближнего зарубежья: Белоруссия, Украина, Казахстан