Добро пожаловать на http://vipplan.ru

Випплан Мценск - это тысячи проектов домов в нашем каталоге!

Вы всегда сможете найти для себя проект дома вашей мечты! Даже если этого не случилось, мы готовы в любую минуту предложить проект индивидуального дома.

Забыли пароль?
Вы еще не регистрировались?

Перейдите по ссылке ниже на страницу регистрации.

Регистрация...

Внимание!!!

В проектную документацию могут быть внесены изменения любой сложности, в соответствии в Вашими пожеланиями!

Полезные статьи

Где копать колодец?

Водоснабжение за городом - Мценск всегда было проблематичным. При отсутствии центрального водоснабжения остается только один выход – выкопать колодец. Водоносный пласт есть не везде. Как же определить, где копать колодец?...

Газобетонные перекрытия

Перекрытия из газобетонных плит, устанавливаются без применения подъемников и кранов. Строители устанавливают прочные и, что немаловажно, легкие газоблоки без помощи техники. Ячеистый бетон (пенобетон и газобетон) нашел широкое применение в домах из пенобетона и газобетона в Мценске...

Проекты домов и коттеджей > Каталог проектов домов > Проект двухэтажного дома с гаражом Vg2234

Проект двухэтажного дома с гаражом Vg2234

Проект двухэтажного дома с гаражом
Зарегистрируйтесь

Проект № Vg2234


Техническое описание
Общая площадь: 192.85 м2
Жилая площадь: 108.05 м2
Высота здания: 9.59 м
Размеры дома: 9.8м×13.1м
Цокольный этаж: нет
Гараж: нет
Мансарда: нет

Kонструкция
Фундамент: Ленточный
Перекрытия: сборные ж/б.
Материал стен: Бетонные блоки

Архитектурный раздел
Конструктивный раздел
АР+КР - 60 000 (Со скидкой 20%)
Проект индивидуального двухэтажного жилого дома с размерами здания 9,80 x 13,10 м. Фундамент – ленточный монолитный. Наружные стены – блок кремнегранит/клинкерная плитка. Внутренние стены – газобетон. Перегородки – газобетон. Пол первого этажа – пол по грунту. Межэтажные перекрытия –сборные ж/б. Чердачные перекрытия - деревянные балки перекрытия. Перемычки: монолитные ж/б. Крыша – четырехскатная. Кровля – металлочерепица. Окна – металлопластиковые. Лестница – металлическая (деревянная по металлическому каркасу).
Генплан застройки участка / Паспорт проекта 7000 руб / 10000 руб
Инженерный раздел (полный) 96500 руб
Смета на строительство 48250 руб
Теплотехнический расчет материалов стен Бесплатно
Стоимость проекта со незначительнми изменениями 70150 руб
Стоимость проекта со средними изменениями* 84700 руб
Стоимость проекта со значительными изменениями** 88500 руб

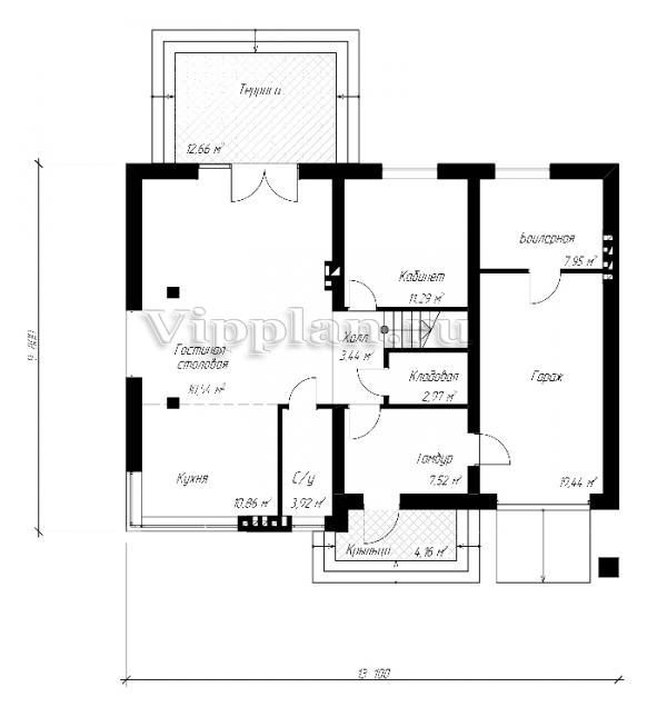
План первого этажа


Тамбур — 7,52 м2
Холл — 3,44 м2
Кладовая — 2,97 м2
Кабинет — 11,29 м2
Гостиная-столовая — 30,54 м2
Бойлерная — 7,95 м2
Гараж — 19,44 м2

Проект двухэтажного дома с гаражом

Проект двухэтажного дома с гаражом

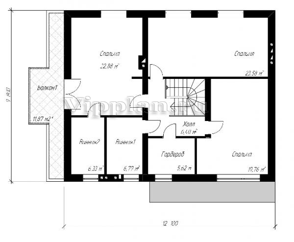
План второго этажа


Холл — 6,4 м2
Спальня — 23,58 м2
Спальня — 19,76 м2
Гардероб — 5,62 м2
Спальня — 22,38 м2
Ванная1 — 6,79 м2
Ванная2 — 6,33 м2
Балкон — 11,87 м2
Проект двухэтажного дома с гаражом Проект двухэтажного дома с гаражом Проект двухэтажного дома с гаражом Проект двухэтажного дома с гаражом
Внесение изменений и привязка к участку строительства

В любой из проектов от компании VIPplan - Мценск по вашему желанию могут быть внесены изменения в материалы стен, материалы наружной отделки дома, а также будет произведена адаптация проекта под конкретный регион строительства (с учетом грунтов региона, геологических особенностей вашего участка и местных климатических условий) - БЕСПЛАТНО !!! (кроме проектов со скидкой и проектов наших партнеров).

Любой из проектов, размещенных на сайте mtsensk.vipplan.ru мы можем выполнить из требуемых вам строительных материалов: ячеистый бетон (газобетон, пеноблок), керамоблок, кирпич, шлакоблок, бетонный блок, дерево (брус, клееный брус), каркасная технология (деревянный каркас, металлокаркас (ЛСТК)).

Фасад дома и его наружную отделку так же возможно выполнить с применением различных облицовочных материалов: структурной штукатурки, (с утеплителем и без), сайдингом (пластиковый или металлосайдинг), фиброплитами, кирпича.

 
6 Избранные
проекты

Доставка проектов по России: Москва (Московская область), Санкт-Петербург (Ленинградская область), Краснодар, Ростов-на-Дону, Ставрополь, Сочи, Волгоград, Новосибирск, Белгород, Брянск, Воронеж, Саратов, Хабаровск, Астрахань, Нальчик, Владикавказ, Екатеринбург, Тюмень, Самара, Нижний Новгород, Казань, Пермь, Уфа, Челябинск, Красноярск, Ханты-Мансийск, Иркутск, Курган, Оренбург, Омск, Томск, Барнаул, Новокузнецк, Кемерово, Абакан, Чита, Якутск, Южно-Сахалинск, Петропавловск-Камчатский и страны ближнего зарубежья: Белоруссия, Украина, Казахстан