Добро пожаловать на http://vipplan.ru

Випплан Мценск - это тысячи проектов домов в нашем каталоге!

Вы всегда сможете найти для себя проект дома вашей мечты! Даже если этого не случилось, мы готовы в любую минуту предложить проект индивидуального дома.

Забыли пароль?
Вы еще не регистрировались?

Перейдите по ссылке ниже на страницу регистрации.

Регистрация...

Внимание!!!

В проектную документацию могут быть внесены изменения любой сложности, в соответствии в Вашими пожеланиями!

Полезные статьи

Применение свайных фундаментов

Сваи представляют собой длинные стержни, погруженные глубоко в грунт или изготовленные непосредственно в грунте. Покупные сваи с одной стороны имеют заостренный конец, который забивается в почву с помощью специальной техники. Установка свай, изготовленных своими руками, предполагают бурение скважин, армирование и заливку бетонного раствора. ...

Применение ленточных фундаментов

Большинство людей никогда не сталкивались с выбором фундамента, а, столкнувшись, не могут определиться с выбором. Ведущие специалисты в области строительства утверждают, что лучшим типом фундамент - ленточный фундамент. Как показывает статистика, ленточный фундамент очень популярен среди жителей нашей страны. ...

Проекты домов и коттеджей > Каталог проектов домов > Проект двухэтажного дома с гаражом и террасой Vg2387

Проект двухэтажного дома с гаражом и террасой Vg2387

Проект двухэтажного дома с гаражом и террасой
Зарегистрируйтесь

Проект № Vg2387


Техническое описание
Общая площадь: 199 м2
Жилая площадь: 106.76 м2
Высота здания: 9.5 м
Размеры дома: 12.9м×11м
Кол-во комнат: 5
Цокольный этаж: нет
Гараж: нет
Мансарда: нет

Kонструкция
Фундамент: Ленточный монолитный ж/б
Перекрытия: Сборные ж/б плиты перекрытия
Материал стен: Бетонные блоки

Архитектурный раздел
Конструктивный раздел
Инженерный раздел
АР+КР - 60 000 (Со скидкой 20%)
АР+КР+ИР - 129 650 (Со скидкой 50%)
Модель проекта индивидуального двухэтажного жилого дома с размерами здания 11,00 x 12,90 м. Фундамент - ленточный монолитный ж/б. Наружные стены - теплоблок. Внутренние стены - газобетонный блок. Перегородки - газобетонный блок. Пол первого этажа - пол по грунту. Межэтажные перекрытия - сборные ж/б плиты перекрытия. Крыша четырехскатная. Кровля - металлочерепица. Окна - металлопластиковые. Лестница - металлическая.
Генплан застройки участка / Паспорт проекта 7000 руб / 10000 руб
Инженерный раздел (полный) 69650 руб (99500 руб)
Смета на строительство 49750 руб
Теплотехнический расчет материалов стен Бесплатно
Стоимость проекта со незначительнми изменениями 70000 руб
Стоимость проекта со средними изменениями* 85000 руб
Стоимость проекта со значительными изменениями** 88900 руб

План первого этажа


Прихожая - 7,59 кв м
С/у - 3,84 кв м
Кухня - 10,47 кв м
Гостиная - 30,31 кв м
Холл - 3,25 кв м
Кладовая - 3,08 кв м
Кабинет - 11,22 кв м
Бойлерная - 7,67 кв м
Гараж - 19,36 кв м

Проект двухэтажного дома с гаражом и террасой

Проект двухэтажного дома с гаражом и террасой

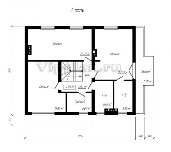
План второго этажа


Холл - 6,06 кв м
Спальня - 22,33 кв м
Спальня - 23,07 кв м
Спальня - 19,83 кв м
Гардероб - 5,67 кв м
С/у - 6,45 кв м
С/у - 6,65 кв м
Балкон - 3,48 кв м
Проект двухэтажного дома с гаражом и террасой Проект двухэтажного дома с гаражом и террасой Проект двухэтажного дома с гаражом и террасой Проект двухэтажного дома с гаражом и террасой

Модификации проектов

Внесение изменений и привязка к участку строительства

В любой из проектов от компании VIPplan - Мценск по вашему желанию могут быть внесены изменения в материалы стен, материалы наружной отделки дома, а также будет произведена адаптация проекта под конкретный регион строительства (с учетом грунтов региона, геологических особенностей вашего участка и местных климатических условий) - БЕСПЛАТНО !!! (кроме проектов со скидкой и проектов наших партнеров).

Любой из проектов, размещенных на сайте mtsensk.vipplan.ru мы можем выполнить из требуемых вам строительных материалов: ячеистый бетон (газобетон, пеноблок), керамоблок, кирпич, шлакоблок, бетонный блок, дерево (брус, клееный брус), каркасная технология (деревянный каркас, металлокаркас (ЛСТК)).

Фасад дома и его наружную отделку так же возможно выполнить с применением различных облицовочных материалов: структурной штукатурки, (с утеплителем и без), сайдингом (пластиковый или металлосайдинг), фиброплитами, кирпича.

 
6 Избранные
проекты

Доставка проектов по России: Москва (Московская область), Санкт-Петербург (Ленинградская область), Краснодар, Ростов-на-Дону, Ставрополь, Сочи, Волгоград, Новосибирск, Белгород, Брянск, Воронеж, Саратов, Хабаровск, Астрахань, Нальчик, Владикавказ, Екатеринбург, Тюмень, Самара, Нижний Новгород, Казань, Пермь, Уфа, Челябинск, Красноярск, Ханты-Мансийск, Иркутск, Курган, Оренбург, Омск, Томск, Барнаул, Новокузнецк, Кемерово, Абакан, Чита, Якутск, Южно-Сахалинск, Петропавловск-Камчатский и страны ближнего зарубежья: Белоруссия, Украина, Казахстан