Добро пожаловать на http://vipplan.ru

Випплан Мценск - это тысячи проектов домов в нашем каталоге!

Вы всегда сможете найти для себя проект дома вашей мечты! Даже если этого не случилось, мы готовы в любую минуту предложить проект индивидуального дома.

Забыли пароль?
Вы еще не регистрировались?

Перейдите по ссылке ниже на страницу регистрации.

Регистрация...

Внимание!!!

В проектную документацию могут быть внесены изменения любой сложности, в соответствии в Вашими пожеланиями!

Полезные статьи

Сборные фундаменты

В наше время все большую популярность при строительстве дома приобретают сборные бетонные и железобетонные блоки. Их использование значительно сокращает время работ и снижает их трудоемкость....

Дом это прекрасное вложение

Современный рынок недвижимости диктует свои правила. Цены на землю и недвижимость в Мценске постоянно растут и вынуждают по-другому смотреть на покупку собственного дома. Не только со стороны получения удобного, благоустроенного жилья, но и со стороны капитализации и инвестировании своих средств...

Проекты домов и коттеджей > Каталог проектов домов > Проект просторного двухэтажного дома с подвалом, мансардой и гаражом на две машины Vg2403

Проект просторного двухэтажного дома с подвалом, мансардой и гаражом на две машины Vg2403

Проект просторного двухэтажного дома с подвалом, мансардой и гаражом на две машины
Зарегистрируйтесь

Проект № Vg2403


Техническое описание
Общая площадь: 414 м2
Жилая площадь: 152.6 м2
Высота здания: 11.68 м
Размеры дома: 23.36м×15.76м
Кол-во комнат: 7
Цокольный этаж: есть
Гараж: нет
Мансарда: есть

Kонструкция
Фундамент: Ленточный монолитный ж/б
Перекрытия: Сборные ж/б плиты перекрытия, деревянные и металлические балки перекрытия
Материал стен: Газобетон

Архитектурный раздел
Конструктивный раздел
Инженерный раздел
АР+КР - 100 000 (Со скидкой 20%)
АР+КР+ИР - 244 900 (Со скидкой 50%)
Проект двухэтажного дома с подвалом и мансардой с размерами здания 23,36 x 15,76 м. Наружная отделка здания - облицовочный кирпич, фасадная штукатурка, фасадная плитка. Фундамент - ленточный монолитный ж/б. Наружные стены - газобетонный блок с утеплителем, вентилируемым зазором и отделкой облицовочным кирпичом/фасадной штукатуркой/фасадной плиткой. Внутренние стены - газобетонный блок. Перегородки - забутовочный кирпич. Пол подвала и частично первого этажа - пол по грунту. Межэтажные перекрытия - сборные ж/б плиты перекрытия и деревянные и металлические балки перекрытия. Крыша многоскатная. Кровля - металлочерепица. Окна - металлопластиковые. Лестница - металлическая.
Генплан застройки участка / Паспорт проекта 7000 руб / 10000 руб
Инженерный раздел (полный) 144900 руб (207000 руб)
Смета на строительство 103500 руб
Теплотехнический расчет материалов стен Бесплатно
Стоимость проекта со незначительнми изменениями 114650 руб
Стоимость проекта со средними изменениями* 145700 руб
Стоимость проекта со значительными изменениями** 154000 руб

План цокольного этажа


Погреб - 20,89 кв м
Холл - 7,06 кв м
Помещение 1 - 17,20 кв м
С/у - 2,45 кв м
Комната отдыха - 26,43 кв м

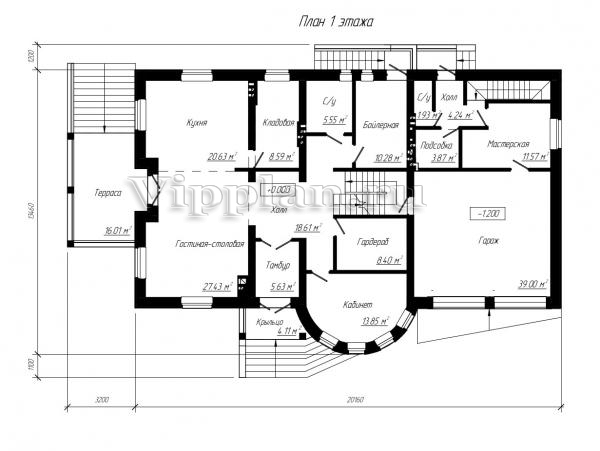
План первого этажа


Тамбур - 5,63 кв м
Холл - 18,61 кв м
Гостиная-столовая - 27,43 кв м
Кухня - 20,63 кв м
Кладовая - 8,59 кв м
С/у - 5,55 кв м
Бойлерная - 10,28 кв м
С/у - 1,93 кв м
Холл - 4,24 кв м
Подсобка - 3,87 кв м
Мастерская - 11,57 кв м
Гараж - 39,00 кв м
Гардероб - 8,40 кв м
Кабинет - 13,85 кв м

Проект просторного двухэтажного дома с подвалом, мансардой и гаражом на две машины

Проект просторного двухэтажного дома с подвалом, мансардой и гаражом на две машины

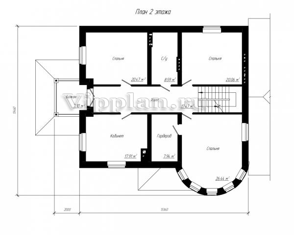
План второго этажа


Холл - 17,47 кв м
С/у - 8,59 кв м
Спальня - 20,47 кв м
Спальня - 20,06 кв м
Спальня - 26,44 кв м
Гардероб - 7,94 кв м
Кабинет - 17,91 кв м
Балкон — 2,13 кв м

План мансардного этажа


Помещение 1 - 39,88 кв м
Проект просторного двухэтажного дома с подвалом, мансардой и гаражом на две машины Проект просторного двухэтажного дома с подвалом, мансардой и гаражом на две машины Проект просторного двухэтажного дома с подвалом, мансардой и гаражом на две машины Проект просторного двухэтажного дома с подвалом, мансардой и гаражом на две машины

Модификации проектов

Внесение изменений и привязка к участку строительства

В любой из проектов от компании VIPplan - Мценск по вашему желанию могут быть внесены изменения в материалы стен, материалы наружной отделки дома, а также будет произведена адаптация проекта под конкретный регион строительства (с учетом грунтов региона, геологических особенностей вашего участка и местных климатических условий) - БЕСПЛАТНО !!! (кроме проектов со скидкой и проектов наших партнеров).

Любой из проектов, размещенных на сайте mtsensk.vipplan.ru мы можем выполнить из требуемых вам строительных материалов: ячеистый бетон (газобетон, пеноблок), керамоблок, кирпич, шлакоблок, бетонный блок, дерево (брус, клееный брус), каркасная технология (деревянный каркас, металлокаркас (ЛСТК)).

Фасад дома и его наружную отделку так же возможно выполнить с применением различных облицовочных материалов: структурной штукатурки, (с утеплителем и без), сайдингом (пластиковый или металлосайдинг), фиброплитами, кирпича.

 
6 Избранные
проекты

Доставка проектов по России: Москва (Московская область), Санкт-Петербург (Ленинградская область), Краснодар, Ростов-на-Дону, Ставрополь, Сочи, Волгоград, Новосибирск, Белгород, Брянск, Воронеж, Саратов, Хабаровск, Астрахань, Нальчик, Владикавказ, Екатеринбург, Тюмень, Самара, Нижний Новгород, Казань, Пермь, Уфа, Челябинск, Красноярск, Ханты-Мансийск, Иркутск, Курган, Оренбург, Омск, Томск, Барнаул, Новокузнецк, Кемерово, Абакан, Чита, Якутск, Южно-Сахалинск, Петропавловск-Камчатский и страны ближнего зарубежья: Белоруссия, Украина, Казахстан