Добро пожаловать на http://vipplan.ru

Випплан Мценск - это тысячи проектов домов в нашем каталоге!

Вы всегда сможете найти для себя проект дома вашей мечты! Даже если этого не случилось, мы готовы в любую минуту предложить проект индивидуального дома.

Забыли пароль?
Вы еще не регистрировались?

Перейдите по ссылке ниже на страницу регистрации.

Регистрация...

Внимание!!!

В проектную документацию могут быть внесены изменения любой сложности, в соответствии в Вашими пожеланиями!

Полезные статьи

Приобретение земельного участка в собственность

Вы собираетесь приобрести участок. Прежде чем принять окончательное решение, тщательно изучите местность, на которой находится ваш участок, внимательно осмотрите местность. Узнайте о близости реки или других водоемах, всмотритесь в рельеф. Каждый из факторов может иметь неоспоримые плюсы, а также минусы, способные повлиять на окончательное решение. Стоит принять во внимание, что земельные участки, которые продаются «напрямую», дешевле тех, которые реализуют, пользуясь услугами посредников....

Вентиляция в подвале дома

Без подвала или цокольного этажа в частном доме, в наше время, не обойтись. Это полезное для дома помещение должно быть хорошо вентилируемым. В доме с подвалом должна быть хорошая циркуляция воздуха, для сохранения находящихся в нем продуктов. Отсутствие вентиляции  может привести к образованию плесени и сырости не только в подвале, но и во всем доме....

Проекты домов и коттеджей > Каталог проектов домов > Двухэтажный дом с террасой и чердаком Vg2425

Двухэтажный дом с террасой и чердаком Vg2425

Двухэтажный дом с террасой и чердаком
Зарегистрируйтесь

Проект № Vg2425


Техническое описание
Общая площадь: 231.62 м2
Жилая площадь: 136.24 м2
Высота здания: 10.61 м
Размеры дома: 13.26м×10.76м
Кол-во комнат: 7
Цокольный этаж: нет
Гараж: нет
Мансарда: нет

Kонструкция
Фундамент: свайно-ростверковый
Перекрытия: монолитные ж/б
Материал стен: Каркас

Архитектурный раздел
Конструктивный раздел
АР+КР - 64 000 (Со скидкой 20%)
Модель проекта индивидуального двухэтажного дома с размерами здания 13,26 x 10,76 м. Наружная отделка здания – штукатурка. Фундамент –свайно-ростверковый (забивной). Наружные стены – монолитный ж/б каркас с заполнением керамическим блоком, утеплением минеральной ватой и отделкой. Перегородки - забутовочный кирпич. Пол 1 этажа, межэтажное и чердачное перекрытия - монолитная ж/б плита. Крыша многоскатная. Кровля – битумная черепица. Окна — металлопластиковые.
Генплан застройки участка / Паспорт проекта 7000 руб / 10000 руб
Инженерный раздел (полный) 116000 руб
Смета на строительство 58000 руб
Теплотехнический расчет материалов стен Бесплатно
Стоимость проекта со незначительнми изменениями 74200 руб
Стоимость проекта со средними изменениями* 91600 руб
Стоимость проекта со значительными изменениями** 96200 руб

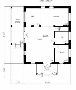
План первого этажа


Гостиница — 54,84 м2
Кухня — 14,72 м2
Столовая — 27,14 м2
С/у — 9,24 м2
Гостевая — 12,8 м2

Двухэтажный дом с террасой и чердаком

Двухэтажный дом с террасой и чердаком

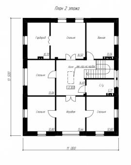
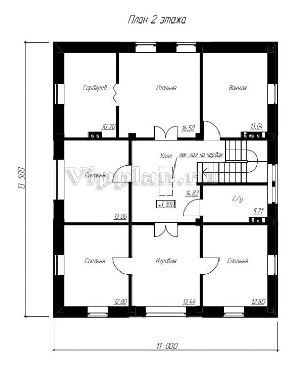
План второго этажа


Холл — 14,83 м2
Ванная — 13,04 м2
Спальня — 16,5 м2
Гардероб — 10,7 м2
Спальня — 13,06 м2
С/у — 5,71 м2
Спальня — 12,8 м2
Игровая — 13,44 м2
Спальня — 12,8 м2
Двухэтажный дом с террасой и чердаком Двухэтажный дом с террасой и чердаком Двухэтажный дом с террасой и чердаком Двухэтажный дом с террасой и чердаком

Модификации проектов

Внесение изменений и привязка к участку строительства

В любой из проектов от компании VIPplan - Мценск по вашему желанию могут быть внесены изменения в материалы стен, материалы наружной отделки дома, а также будет произведена адаптация проекта под конкретный регион строительства (с учетом грунтов региона, геологических особенностей вашего участка и местных климатических условий) - БЕСПЛАТНО !!! (кроме проектов со скидкой и проектов наших партнеров).

Любой из проектов, размещенных на сайте mtsensk.vipplan.ru мы можем выполнить из требуемых вам строительных материалов: ячеистый бетон (газобетон, пеноблок), керамоблок, кирпич, шлакоблок, бетонный блок, дерево (брус, клееный брус), каркасная технология (деревянный каркас, металлокаркас (ЛСТК)).

Фасад дома и его наружную отделку так же возможно выполнить с применением различных облицовочных материалов: структурной штукатурки, (с утеплителем и без), сайдингом (пластиковый или металлосайдинг), фиброплитами, кирпича.

 
6 Избранные
проекты

Доставка проектов по России: Москва (Московская область), Санкт-Петербург (Ленинградская область), Краснодар, Ростов-на-Дону, Ставрополь, Сочи, Волгоград, Новосибирск, Белгород, Брянск, Воронеж, Саратов, Хабаровск, Астрахань, Нальчик, Владикавказ, Екатеринбург, Тюмень, Самара, Нижний Новгород, Казань, Пермь, Уфа, Челябинск, Красноярск, Ханты-Мансийск, Иркутск, Курган, Оренбург, Омск, Томск, Барнаул, Новокузнецк, Кемерово, Абакан, Чита, Якутск, Южно-Сахалинск, Петропавловск-Камчатский и страны ближнего зарубежья: Белоруссия, Украина, Казахстан