Добро пожаловать на http://vipplan.ru

Випплан Мценск - это тысячи проектов домов в нашем каталоге!

Вы всегда сможете найти для себя проект дома вашей мечты! Даже если этого не случилось, мы готовы в любую минуту предложить проект индивидуального дома.

Забыли пароль?
Вы еще не регистрировались?

Перейдите по ссылке ниже на страницу регистрации.

Регистрация...

Внимание!!!

В проектную документацию могут быть внесены изменения любой сложности, в соответствии в Вашими пожеланиями!

Полезные статьи

Советы по проектированию дома

Представляем Вашему вниманию несколько советов по проектированию дома. Все что касается выбора участка, размещению дома на участке, подбора проекта на строительство дома, советы по выбору технологии строительства и материалов и т.д....

Виды бассейнов

В наше время, строительство бассейна на территории своего участка, не такая уж и роскошь. Выбор видов и стилей бассейна, на сегодняшний день, очень большой....

Проекты домов и коттеджей > Каталог проектов домов > Одноэтажный дом Vg2430

Одноэтажный дом Vg2430

Одноэтажный дом
Зарегистрируйтесь

Проект № Vg2430


Техническое описание
Общая площадь: 67.53 м2
Жилая площадь: 43.52 м2
Высота здания: 6.42 м
Размеры дома: 12.08м×7.48м
Кол-во комнат: 3
Цокольный этаж: нет
Гараж: нет
Мансарда: нет

Kонструкция
Фундамент: Монолитная ж/б плита
Перекрытия: деревянные балки
Материал стен: Бетонные блоки

Архитектурный раздел
Конструктивный раздел
Инженерный раздел
АР+КР - 40 000 (Со скидкой 20%)
АР+КР+ИР - 75 000 (Со скидкой 50%)
Модель проекта одноэтажного дома с размерами здания 12,08 x 7,48 м. Наружная отделка здания – облицовочный кирпич. Фундамент – монолитная ж/б плита. Наружные стены – керамзитобетонные блоки, вентиляционный зазор, облицовочный кирпич. Внутренние стены и перегородки – керамзитобетонные блоки. Пол 1 этажа - пол по монолитной плите. Чердачное перекрытие - деревянные балки. Крыша многоскатная. Кровля – металлочерепица. Окна — металлопластиковые.
Генплан застройки участка / Паспорт проекта 7000 руб / 10000 руб
Инженерный раздел (полный) 35000 руб (50000 руб)
Смета на строительство 25000 руб
Теплотехнический расчет материалов стен Бесплатно
Стоимость проекта со незначительнми изменениями 48300 руб
Стоимость проекта со средними изменениями* 53400 руб
Стоимость проекта со значительными изменениями** 54800 руб

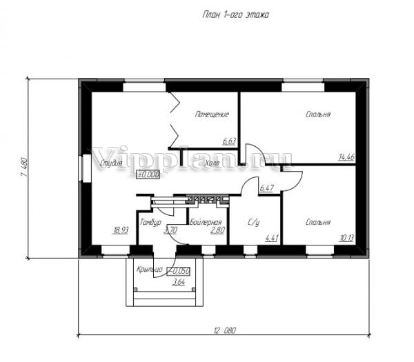
План первого этажа


Тамбур — 3,7 м2
Бойлерная — 2,8 м2
Студия — 18,93 м2
Холл — 6,47 м2
Помещение — 6,63 м2
Спальня — 14,46 м2
Спальня — 10,13 м2
С/у — 4,41 м2
Одноэтажный дом Одноэтажный дом Одноэтажный дом Одноэтажный дом

Модификации проектов

Внесение изменений и привязка к участку строительства

В любой из проектов от компании VIPplan - Мценск по вашему желанию могут быть внесены изменения в материалы стен, материалы наружной отделки дома, а также будет произведена адаптация проекта под конкретный регион строительства (с учетом грунтов региона, геологических особенностей вашего участка и местных климатических условий) - БЕСПЛАТНО !!! (кроме проектов со скидкой и проектов наших партнеров).

Любой из проектов, размещенных на сайте mtsensk.vipplan.ru мы можем выполнить из требуемых вам строительных материалов: ячеистый бетон (газобетон, пеноблок), керамоблок, кирпич, шлакоблок, бетонный блок, дерево (брус, клееный брус), каркасная технология (деревянный каркас, металлокаркас (ЛСТК)).

Фасад дома и его наружную отделку так же возможно выполнить с применением различных облицовочных материалов: структурной штукатурки, (с утеплителем и без), сайдингом (пластиковый или металлосайдинг), фиброплитами, кирпича.

 
6 Избранные
проекты

Доставка проектов по России: Москва (Московская область), Санкт-Петербург (Ленинградская область), Краснодар, Ростов-на-Дону, Ставрополь, Сочи, Волгоград, Новосибирск, Белгород, Брянск, Воронеж, Саратов, Хабаровск, Астрахань, Нальчик, Владикавказ, Екатеринбург, Тюмень, Самара, Нижний Новгород, Казань, Пермь, Уфа, Челябинск, Красноярск, Ханты-Мансийск, Иркутск, Курган, Оренбург, Омск, Томск, Барнаул, Новокузнецк, Кемерово, Абакан, Чита, Якутск, Южно-Сахалинск, Петропавловск-Камчатский и страны ближнего зарубежья: Белоруссия, Украина, Казахстан