Добро пожаловать на http://vipplan.ru

Випплан Мценск - это тысячи проектов домов в нашем каталоге!

Вы всегда сможете найти для себя проект дома вашей мечты! Даже если этого не случилось, мы готовы в любую минуту предложить проект индивидуального дома.

Забыли пароль?
Вы еще не регистрировались?

Перейдите по ссылке ниже на страницу регистрации.

Регистрация...

Внимание!!!

В проектную документацию могут быть внесены изменения любой сложности, в соответствии в Вашими пожеланиями!

Полезные статьи

Укладка тротуарной плитки

При укладке тротуарной плитки, необходимо соблюдать технологию, во избежание, разрушения и расшатывания покрытия. Первый этап - подготовка основания.  ...

Печи и камины в частном доме

Спросите любого человека, и вы поймете, что каждый человек мечтает иметь свой собственный дом, который он сможет обустроить так, как ему хочется. Этот дом будет полон уюта, тепла, света и комфорта, а главное, что, придя с работы, человек сможет запросто отдохнуть у своего очага.  Нет никакой альтернативы перед выбором печи или камина. Эти две вещи не сможет  заменить ни искусственный свет, ни солнечное освещение. Камин и печь, с древности, считаются предметом роскоши. Ни один большой дом не может обойтись без них, поскольку если удастся сесть и посидеть перед этим местом, то долго нельзя будет...

Проекты домов и коттеджей > Каталог проектов домов > Двухэтажный дом с гаражом, террасой и лоджией Vg2510

Двухэтажный дом с гаражом, террасой и лоджией Vg2510

Двухэтажный дом с гаражом, террасой и лоджией
Зарегистрируйтесь

Проект № Vg2510


Техническое описание
Общая площадь: 150.63 м2
Жилая площадь: 80.21 м2
Высота здания: 9.25 м
Размеры дома: 12.4м×12.9м
Кол-во комнат: 4
Цокольный этаж: нет
Гараж: нет
Мансарда: нет

Kонструкция
Фундамент: монолитная плита
Перекрытия: сборные ж/б
Материал стен: Газобетон

Архитектурный раздел
Конструктивный раздел
АР+КР - 56 000 (Со скидкой 20%)
Двухэтажный дом с гаражом, террасой и лоджией с размерами здания 12,40 x 12,90 м. Фундамент - монолитная ж/б плита. Наружные стены - газобетонные блоки, минераловатные плиты, воздушный зазор и отделка облицовочным кирпичом. Внутренние стены: газобетонный блок. Перегородки - газобетонный блок. Пол 1 этажа - пол по фундаментной плите. Перекрытие межэтажное - сборные ж/б плиты. Крыша - многоскатная. Кровля - металлочерепица. Окна - металлопластиковые.
Генплан застройки участка / Паспорт проекта 7000 руб / 10000 руб
Инженерный раздел (полный) 75500 руб
Смета на строительство 37750 руб
Теплотехнический расчет материалов стен Бесплатно
Стоимость проекта со незначительнми изменениями 66200 руб
Стоимость проекта со средними изменениями* 77600 руб
Стоимость проекта со значительными изменениями** 80600 руб

План первого этажа


Тамбур - 2,07 м2
Холл 1 - 8,79 м2
Холл 2 - 2,34 м2
Гараж - 18,63 м2
Бойлерная - 6,59 м2
Кухня - 13,82 м2
С/у - 4,37 м2
Гостиная - 34,53 м2

Двухэтажный дом с гаражом, террасой и лоджией

Двухэтажный дом с гаражом, террасой и лоджией

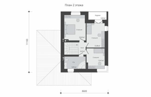
План второго этажа


Холл - 3,22 м2
Спальня - 18,20 м2
Спальня - 15,08 м2
Спальня - 12,41 м2
С/у - 9,09 м2 Лоджия — 1,51 м2
Двухэтажный дом с гаражом, террасой и лоджией Двухэтажный дом с гаражом, террасой и лоджией Двухэтажный дом с гаражом, террасой и лоджией Двухэтажный дом с гаражом, террасой и лоджией

Модификации проектов

Внесение изменений и привязка к участку строительства

В любой из проектов от компании VIPplan - Мценск по вашему желанию могут быть внесены изменения в материалы стен, материалы наружной отделки дома, а также будет произведена адаптация проекта под конкретный регион строительства (с учетом грунтов региона, геологических особенностей вашего участка и местных климатических условий) - БЕСПЛАТНО !!! (кроме проектов со скидкой и проектов наших партнеров).

Любой из проектов, размещенных на сайте mtsensk.vipplan.ru мы можем выполнить из требуемых вам строительных материалов: ячеистый бетон (газобетон, пеноблок), керамоблок, кирпич, шлакоблок, бетонный блок, дерево (брус, клееный брус), каркасная технология (деревянный каркас, металлокаркас (ЛСТК)).

Фасад дома и его наружную отделку так же возможно выполнить с применением различных облицовочных материалов: структурной штукатурки, (с утеплителем и без), сайдингом (пластиковый или металлосайдинг), фиброплитами, кирпича.

 
6 Избранные
проекты

Доставка проектов по России: Москва (Московская область), Санкт-Петербург (Ленинградская область), Краснодар, Ростов-на-Дону, Ставрополь, Сочи, Волгоград, Новосибирск, Белгород, Брянск, Воронеж, Саратов, Хабаровск, Астрахань, Нальчик, Владикавказ, Екатеринбург, Тюмень, Самара, Нижний Новгород, Казань, Пермь, Уфа, Челябинск, Красноярск, Ханты-Мансийск, Иркутск, Курган, Оренбург, Омск, Томск, Барнаул, Новокузнецк, Кемерово, Абакан, Чита, Якутск, Южно-Сахалинск, Петропавловск-Камчатский и страны ближнего зарубежья: Белоруссия, Украина, Казахстан