Добро пожаловать на http://vipplan.ru

Випплан Мценск - это тысячи проектов домов в нашем каталоге!

Вы всегда сможете найти для себя проект дома вашей мечты! Даже если этого не случилось, мы готовы в любую минуту предложить проект индивидуального дома.

Забыли пароль?
Вы еще не регистрировались?

Перейдите по ссылке ниже на страницу регистрации.

Регистрация...

Внимание!!!

В проектную документацию могут быть внесены изменения любой сложности, в соответствии в Вашими пожеланиями!

Полезные статьи

Перекрытия в доме

Перекрытия – одно из важнейших составляющих строящегося дома. Это горизонтальная внутренняя защитная конструкция, разделяющая по уровню смежные помещения дома. По назначению выделяют подвальные, межэтажные и чердачные перекрытия. При проектировании домов и зданий различного назначения, требования к межэтажным перекрытиям определяются их местоположением и функциями разделяемых помещений: надподвальные, межэтажные, чердачные и т.д....

Закладка фундамента дома

Закладка фундамента является одним из первых и самых главных этапов строительства любого дома. Все здание опирается именно на эту часть конструкции. Поэтому главная функция фундамента заключается в том, чтобы нести на себе весь вес несущих стен и кровли, а значит предотвращать появление перекоса стен, проседание сооружения, что неизбежно приводит к образованию трещин в стенах здания и в фундаменте....

Проекты домов и коттеджей > Каталог проектов домов > Двухэтажный дом с террасами, балконом и гаражом на 2 машины Vg3272

Двухэтажный дом с террасами, балконом и гаражом на 2 машины Vg3272

Двухэтажный дом с террасами, балконом и гаражом на 2 машины
Зарегистрируйтесь

Проект № Vg3272


Техническое описание
Общая площадь: 218.07 м2
Жилая площадь: 103.13 м2
Высота здания: 7.65 м
Размеры дома: 20.6м×16.31м
Кол-во комнат: 6
Цокольный этаж: нет
Гараж: нет
Мансарда: нет

Kонструкция
Фундамент: монолитная плита
Перекрытия: монолитные
Материал стен: material_mon

Архитектурный раздел
Конструктивный раздел
Инженерный раздел
АР+КР - 64 000 (Со скидкой 20%)
АР+КР+ИР - 140 300 (Со скидкой 50%)
Двухэтажный дом с размерами здания 20,60 х 16,31 м. Фундамент – монолитная ж/б плита. Наружные стены – газобетонный блок с отделкой штукатуркой и планкеном. Внутренние стены – газобетонный блок. Перегородки – газобетонный блок. Пол 1 этажа по монолитной фундаментной плите, межэтажное перекрытие и перекрытие плоской кровли - монолитные ж/б плиты. Кровля - полимерно-битумный кровельный материал. Окна — алюминиевые.
Генплан застройки участка / Паспорт проекта 7000 руб / 10000 руб
Инженерный раздел (полный) 76300 руб (109000 руб)
Смета на строительство 54500 руб
Теплотехнический расчет материалов стен Бесплатно
Стоимость проекта со незначительнми изменениями 74550 руб
Стоимость проекта со средними изменениями* 90900 руб
Стоимость проекта со значительными изменениями** 95300 руб

План первого этажа


Прихожая - 6,45 м2
С/у - 3,15 м2
Холл - 6,30 м2
Кухня - 13,43 м2
Бойлерная - 5,72 м2
Постирочная - 4,18 м2
Кабинет - 9,14 м2
Гостевая - 11,38 м2
Гостиная - 25,84 м2
Гараж - 39,65 м2

Двухэтажный дом с террасами, балконом и гаражом на 2 машины

Двухэтажный дом с террасами, балконом и гаражом на 2 машины

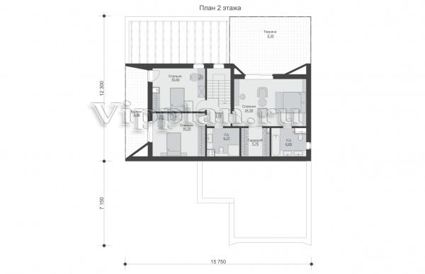
План второго этажа


Холл - 4,05 м2
С/у - 6,27 м2
Спальня - 15,39 м2
Спальня - 16,25 м2
Гардероб - 5,76 м2
Спальня - 24,59 м2
С/у - 6,65 м2
Терраса - 9,35 (31,17) м2
Балкон - 3,98 (13,27) м2
Двухэтажный дом с террасами, балконом и гаражом на 2 машины Двухэтажный дом с террасами, балконом и гаражом на 2 машины Двухэтажный дом с террасами, балконом и гаражом на 2 машины Двухэтажный дом с террасами, балконом и гаражом на 2 машины

Модификации проектов

Внесение изменений и привязка к участку строительства

В любой из проектов от компании VIPplan - Мценск по вашему желанию могут быть внесены изменения в материалы стен, материалы наружной отделки дома, а также будет произведена адаптация проекта под конкретный регион строительства (с учетом грунтов региона, геологических особенностей вашего участка и местных климатических условий) - БЕСПЛАТНО !!! (кроме проектов со скидкой и проектов наших партнеров).

Любой из проектов, размещенных на сайте mtsensk.vipplan.ru мы можем выполнить из требуемых вам строительных материалов: ячеистый бетон (газобетон, пеноблок), керамоблок, кирпич, шлакоблок, бетонный блок, дерево (брус, клееный брус), каркасная технология (деревянный каркас, металлокаркас (ЛСТК)).

Фасад дома и его наружную отделку так же возможно выполнить с применением различных облицовочных материалов: структурной штукатурки, (с утеплителем и без), сайдингом (пластиковый или металлосайдинг), фиброплитами, кирпича.

 
6 Избранные
проекты

Доставка проектов по России: Москва (Московская область), Санкт-Петербург (Ленинградская область), Краснодар, Ростов-на-Дону, Ставрополь, Сочи, Волгоград, Новосибирск, Белгород, Брянск, Воронеж, Саратов, Хабаровск, Астрахань, Нальчик, Владикавказ, Екатеринбург, Тюмень, Самара, Нижний Новгород, Казань, Пермь, Уфа, Челябинск, Красноярск, Ханты-Мансийск, Иркутск, Курган, Оренбург, Омск, Томск, Барнаул, Новокузнецк, Кемерово, Абакан, Чита, Якутск, Южно-Сахалинск, Петропавловск-Камчатский и страны ближнего зарубежья: Белоруссия, Украина, Казахстан