Добро пожаловать на http://vipplan.ru

Випплан Мценск - это тысячи проектов домов в нашем каталоге!

Вы всегда сможете найти для себя проект дома вашей мечты! Даже если этого не случилось, мы готовы в любую минуту предложить проект индивидуального дома.

Забыли пароль?
Вы еще не регистрировались?

Перейдите по ссылке ниже на страницу регистрации.

Регистрация...

Внимание!!!

В проектную документацию могут быть внесены изменения любой сложности, в соответствии в Вашими пожеланиями!

Полезные статьи

Комбинированные дома

Посмотрите, насколько далеко шагнула архитектура за последние десятилетия. Сколько изменилось в облике современных городов. А задумывались ли наши родители, о том что они увидят необыкновенные небоскребы и элитные многоквартирные дома, чьи фасады напоминают обруганную капиталистическую действительность. У людей появилась возможность построить дом за городом и в тишине на природе, реализовать любые дизайнерские фантазии. Те, кто может позволить себе частный дом, не ограничены финансами. Для многих частный дом – это показатель их материального благополучия, поэтому никто из них не хочет испол...

Вентиляция в подвале дома

Без подвала или цокольного этажа в частном доме, в наше время, не обойтись. Это полезное для дома помещение должно быть хорошо вентилируемым. В доме с подвалом должна быть хорошая циркуляция воздуха, для сохранения находящихся в нем продуктов. Отсутствие вентиляции  может привести к образованию плесени и сырости не только в подвале, но и во всем доме....

Проекты домов и коттеджей > Каталог проектов домов > Двухэтажный дом с гаражом, террасой и балконом Vg2458

Двухэтажный дом с гаражом, террасой и балконом Vg2458

Двухэтажный дом с гаражом, террасой и балконом
Зарегистрируйтесь

Проект № Vg2458


Техническое описание
Общая площадь: 107.12 м2
Жилая площадь: 55.99 м2
Высота здания: 8.44 м
Размеры дома: 8.43м×11.34м
Кол-во комнат: 5
Цокольный этаж: нет
Гараж: нет
Мансарда: нет

Kонструкция
Фундамент: ленточный монолитный ж/б под несущими стенами
Перекрытия: деревянные балки
Материал стен: Дерево

Архитектурный раздел
Конструктивный раздел
АР+КР - 48 000 (Со скидкой 20%)
Двухэтажный дом с гаражом, террасой и балконом с размерами здания 8,43 x 11,34 м. Наружная отделка здания – металлический сайдинг. Фундамент – ленточный монолитный ж/б под несущими стенами. Наружные стены – деревянный каркас с заполнением минеральной ватой и отделкой металлическим сайдингом по металлическим направляющим. Внутренние стены - деревянный каркас с заполнением минеральной ватой. Перегородки - каркасные с ГКЛ. Пол 1 этажа - пол по грунту. Межэтажное и чердачное перекрытия - деревянные балки. Крыша сетырехскатная. Кровля – битумная черепица. Окна — деревянные.
Генплан застройки участка / Паспорт проекта 7000 руб / 10000 руб
Инженерный раздел (полный) 53500 руб
Смета на строительство 26750 руб
Теплотехнический расчет материалов стен Бесплатно
Стоимость проекта со незначительнми изменениями 57300 руб
Стоимость проекта со средними изменениями* 65400 руб
Стоимость проекта со значительными изменениями** 67500 руб

План первого этажа


Тамбур — 2,03 м2
Холл — 2,43 м2
Гостиная — 17,19 м2
Кухня — 7,25 м2
Холл — 2,53 м2
Коридор — 1,31 м2
Кабинет — 8,58 м2
Кладовая — 1,75 м2
С/у — 2,82 м2
Гараж — 15,82 м2

Двухэтажный дом с гаражом, террасой и балконом

Двухэтажный дом с гаражом, террасой и балконом

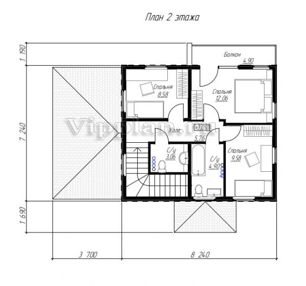
План второго этажа


Холл — 5,82 м2
Спальня — 8,58 м2
Спальня — 12,1 м2
Спальня — 9,54 м2
С/у — 4,87 м2
С/у — 3,03 м2
Двухэтажный дом с гаражом, террасой и балконом Двухэтажный дом с гаражом, террасой и балконом Двухэтажный дом с гаражом, террасой и балконом Двухэтажный дом с гаражом, террасой и балконом

Модификации проектов

Внесение изменений и привязка к участку строительства

В любой из проектов от компании VIPplan - Мценск по вашему желанию могут быть внесены изменения в материалы стен, материалы наружной отделки дома, а также будет произведена адаптация проекта под конкретный регион строительства (с учетом грунтов региона, геологических особенностей вашего участка и местных климатических условий) - БЕСПЛАТНО !!! (кроме проектов со скидкой и проектов наших партнеров).

Любой из проектов, размещенных на сайте mtsensk.vipplan.ru мы можем выполнить из требуемых вам строительных материалов: ячеистый бетон (газобетон, пеноблок), керамоблок, кирпич, шлакоблок, бетонный блок, дерево (брус, клееный брус), каркасная технология (деревянный каркас, металлокаркас (ЛСТК)).

Фасад дома и его наружную отделку так же возможно выполнить с применением различных облицовочных материалов: структурной штукатурки, (с утеплителем и без), сайдингом (пластиковый или металлосайдинг), фиброплитами, кирпича.

 
6 Избранные
проекты

Доставка проектов по России: Москва (Московская область), Санкт-Петербург (Ленинградская область), Краснодар, Ростов-на-Дону, Ставрополь, Сочи, Волгоград, Новосибирск, Белгород, Брянск, Воронеж, Саратов, Хабаровск, Астрахань, Нальчик, Владикавказ, Екатеринбург, Тюмень, Самара, Нижний Новгород, Казань, Пермь, Уфа, Челябинск, Красноярск, Ханты-Мансийск, Иркутск, Курган, Оренбург, Омск, Томск, Барнаул, Новокузнецк, Кемерово, Абакан, Чита, Якутск, Южно-Сахалинск, Петропавловск-Камчатский и страны ближнего зарубежья: Белоруссия, Украина, Казахстан