Добро пожаловать на http://vipplan.ru

Випплан Мценск - это тысячи проектов домов в нашем каталоге!

Вы всегда сможете найти для себя проект дома вашей мечты! Даже если этого не случилось, мы готовы в любую минуту предложить проект индивидуального дома.

Забыли пароль?
Вы еще не регистрировались?

Перейдите по ссылке ниже на страницу регистрации.

Регистрация...

Внимание!!!

В проектную документацию могут быть внесены изменения любой сложности, в соответствии в Вашими пожеланиями!

Полезные статьи

Выбор проекта дома в Мценске. Типовой или индивидуальный?

Строительство дома начинается с выбора проекта. От него будет зависит удобство, комфорт и функциональность Вашего будущего дома. Какой проект выбрать? В каталоге проектов домов VIPplan Мценск предоставлен огромный выбор проектов на любой вкус и кошелек. В итоге выбор сводится к покупке типового проекта дома или заказа индивидуального проекта. Для упращения задачи, расскажем о каждом варианте по отдельности...

Утепление стен дома изнутри

Утепление стен дома изнутри – это не правильный метод теплоизоляции помещения и используется в самом крайнем случае, когда других вариантов уже не остается. Как правило, утепление стен изнутри выполняется по незнанию или вынужденно, поскольку, теплоизоляция внутренних помещений дома другим способом невозможна. Вопросы теплоизоляции необходимо решать на стадии проектирования дома или коттеджа, а не тогда когда дом уже построен и приходится исправлять совершенные ошибки по факту....

Проекты домов и коттеджей > Каталог проектов домов > Двухэтажный дом с гаражом на две машины, террасой и балконом Vg2459

Двухэтажный дом с гаражом на две машины, террасой и балконом Vg2459

Двухэтажный дом с гаражом на две машины, террасой и балконом
Зарегистрируйтесь

Проект № Vg2459


Техническое описание
Общая площадь: 219.93 м2
Жилая площадь: 98.95 м2
Высота здания: 8.25 м
Размеры дома: 14.42м×15.92м
Кол-во комнат: 5
Цокольный этаж: нет
Гараж: нет
Мансарда: нет

Kонструкция
Фундамент: ФБС
Перекрытия: Сборные ж/б плиты
Материал стен: Бетонные блоки

Архитектурный раздел
Конструктивный раздел
АР+КР - 64 000 (Со скидкой 20%)
Двухэтажный дом с гаражом на две машины, террасой и балконом с размерами здания 14,42 x 15,92 м. Фундамент - ФБС. Наружные стены - керамзитобетонный блок, минераловатные плиты и отделка фасадной штукатуркой (керамзитобетонный блок, минераловатные плиты, воздушный зазор и отделка фасадными панелями). Внутренние стены: керамзитобетонный блок. Перегородки - забутовочный кирпич. Пол 1-го этажа - пол по сборным ж/б плитам. Перекрытие межэтажное - сборные ж/б плиты. Перекрытие чердачное - деревянные балки перекрытия. Крыша - многоскатная. Кровля - битумная черепица. Окна - металлопластиковые.
Генплан застройки участка / Паспорт проекта 7000 руб / 10000 руб
Инженерный раздел (полный) 110000 руб
Смета на строительство 55000 руб
Теплотехнический расчет материалов стен Бесплатно
Стоимость проекта со незначительнми изменениями 74500 руб
Стоимость проекта со средними изменениями* 91000 руб
Стоимость проекта со значительными изменениями** 95400 руб

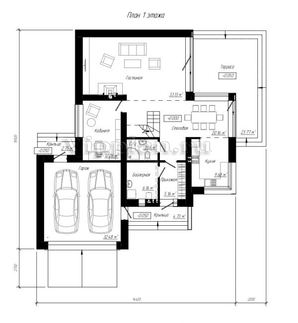
План первого этажа


Прихожая — 5,16 м2
Бойлерная — 6,16 м2
С/у — 3,56 м2
Столовая — 20,16 м2
Кухня — 9,68 м2
Гостиная — 33,13 м2
Кабинет — 12,26 м2
Гараж — 32,48 м2

Двухэтажный дом с гаражом на две машины, террасой и балконом

Двухэтажный дом с гаражом на две машины, террасой и балконом

План второго этажа


Холл — 13,48 м2
Спальня — 21,02 м2
Гардероб — 8,93 м2
Спальня — 19,71 м2
Ванная — 11,6 м2
Гардероб — 7,84 м2
Спальня — 12,82 м2
Балкон — 6,44 м2
Двухэтажный дом с гаражом на две машины, террасой и балконом Двухэтажный дом с гаражом на две машины, террасой и балконом Двухэтажный дом с гаражом на две машины, террасой и балконом Двухэтажный дом с гаражом на две машины, террасой и балконом
Внесение изменений и привязка к участку строительства

В любой из проектов от компании VIPplan - Мценск по вашему желанию могут быть внесены изменения в материалы стен, материалы наружной отделки дома, а также будет произведена адаптация проекта под конкретный регион строительства (с учетом грунтов региона, геологических особенностей вашего участка и местных климатических условий) - БЕСПЛАТНО !!! (кроме проектов со скидкой и проектов наших партнеров).

Любой из проектов, размещенных на сайте mtsensk.vipplan.ru мы можем выполнить из требуемых вам строительных материалов: ячеистый бетон (газобетон, пеноблок), керамоблок, кирпич, шлакоблок, бетонный блок, дерево (брус, клееный брус), каркасная технология (деревянный каркас, металлокаркас (ЛСТК)).

Фасад дома и его наружную отделку так же возможно выполнить с применением различных облицовочных материалов: структурной штукатурки, (с утеплителем и без), сайдингом (пластиковый или металлосайдинг), фиброплитами, кирпича.

 
6 Избранные
проекты

Доставка проектов по России: Москва (Московская область), Санкт-Петербург (Ленинградская область), Краснодар, Ростов-на-Дону, Ставрополь, Сочи, Волгоград, Новосибирск, Белгород, Брянск, Воронеж, Саратов, Хабаровск, Астрахань, Нальчик, Владикавказ, Екатеринбург, Тюмень, Самара, Нижний Новгород, Казань, Пермь, Уфа, Челябинск, Красноярск, Ханты-Мансийск, Иркутск, Курган, Оренбург, Омск, Томск, Барнаул, Новокузнецк, Кемерово, Абакан, Чита, Якутск, Южно-Сахалинск, Петропавловск-Камчатский и страны ближнего зарубежья: Белоруссия, Украина, Казахстан